برونسپاری
آموزش آنلاین
کسب درآمد
×
Elaheh.S
Elaheh.S
Elaheh.S
N/A
تهران
آخرین فعالیت : بیش از یک هفته پیش
دعوت به همکاری
ثبت پروژه مشابه

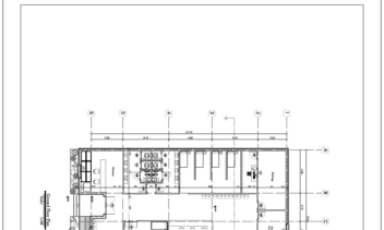
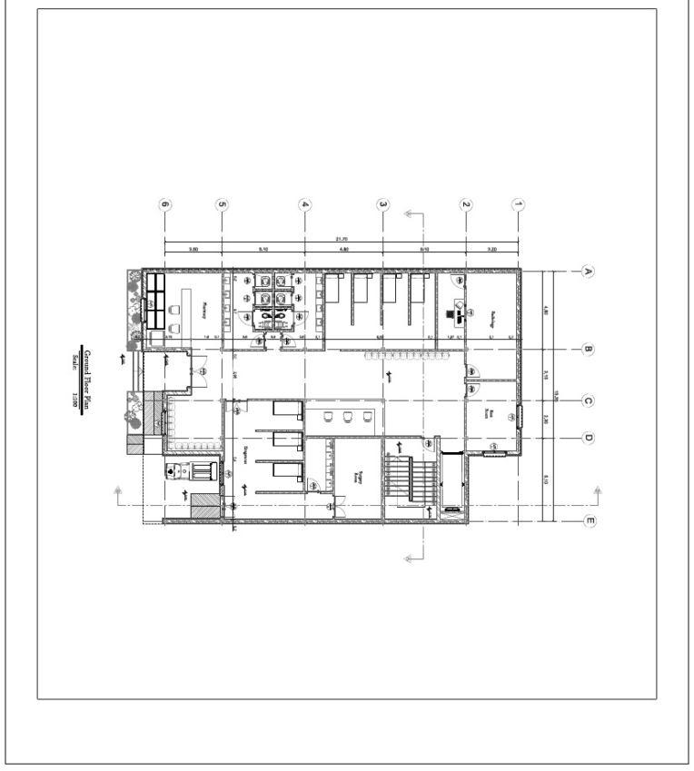
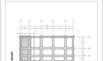
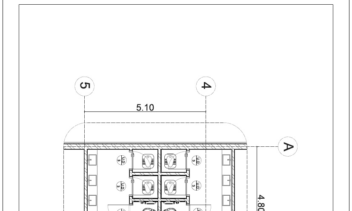
نمونه کار ترسیم مدارک معماری با اتوکد

خانه نمونه کارها ترسیم مدارک معماری با اتوکد
Elaheh.S
ترسیم مدارک معماری با اتوکد
ثبت پروژه مشابه دعوت به همکاری
۸۹ ۰
ترسیم مدارک معماری با اتوکد
ترسیم مدارک معماری با اتوکدترسیم مدارک معماری با اتوکدترسیم مدارک معماری با اتوکد

دانشجوی معماری هستم و از دوره هنرستان روی نرم افزار اتوکد تسلط دارم و میتونم برای ترسیمات اتوکدی پروژه های شما باهاتون همکاری داشته باشم


نمونه‌کار را به اشتراک بگذارید
کپی لینک
گزارش تخلف
نمونه کارهای مشابه
کارلنسر را در شبکه های اجتماعی دنبال کنید
شماره تماس ۲۸۴۲۶۴۴۳ ۰۲۱
آدرس ایمیل info@karlancer.com
پشتیبانی